5829 Heights DriveSterling Heights City, MI 48314




Mortgage Calculator
Monthly Payment (Est.)
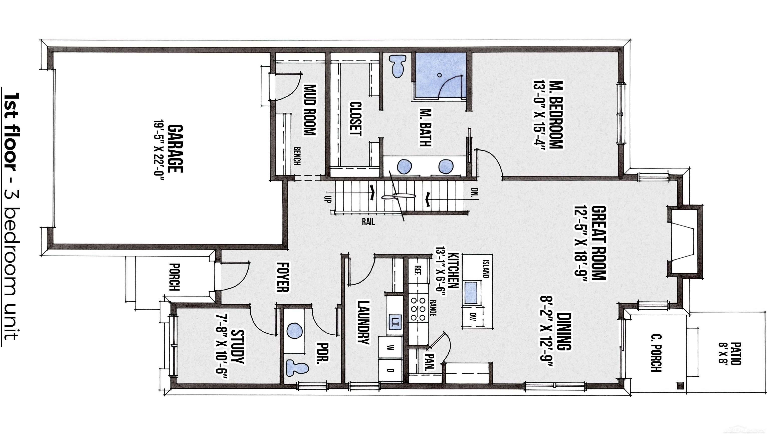
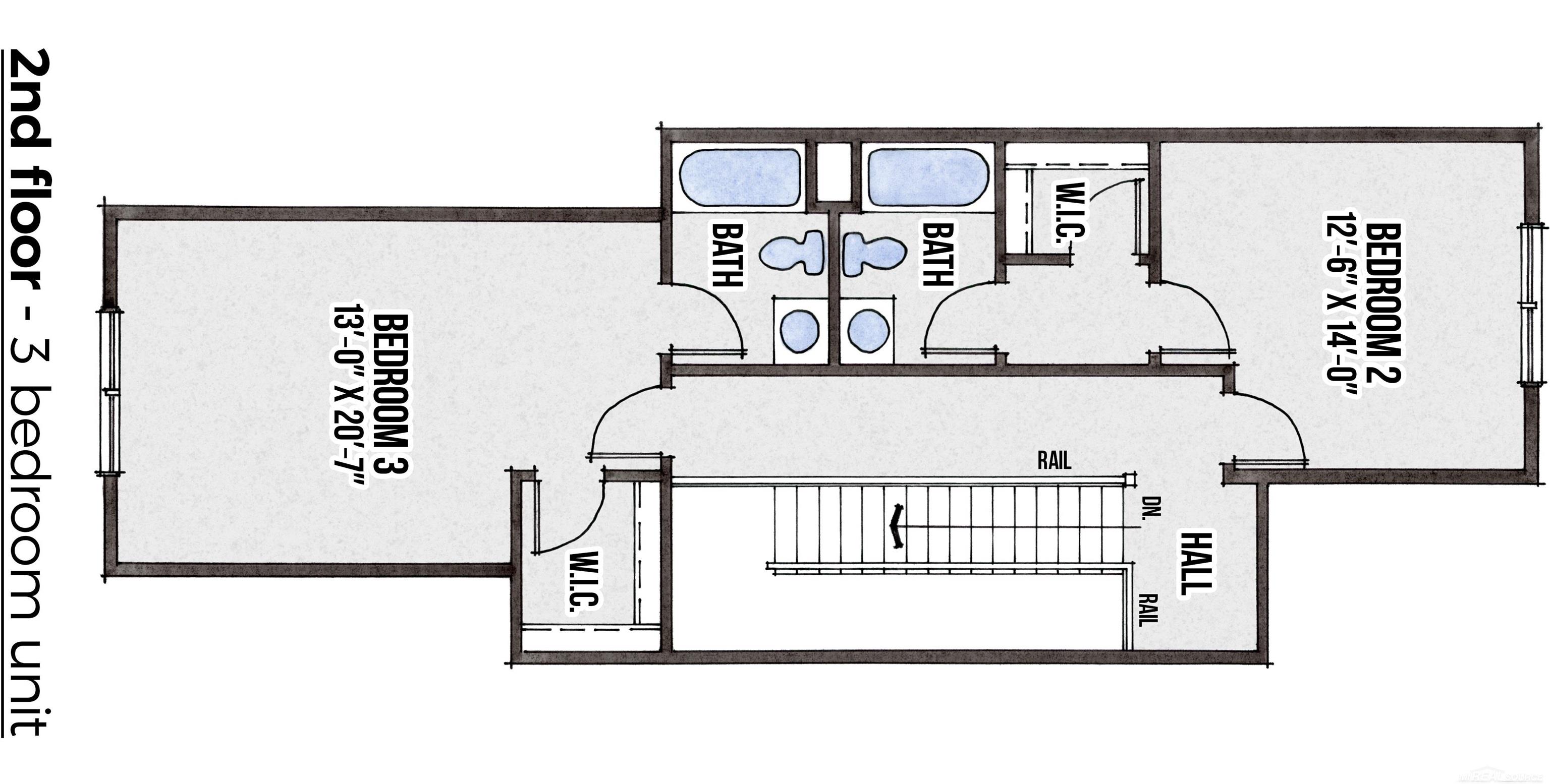
$2,669Will be Ready for March 1 2026 - Luxury Craftsman-Style Condo at Legacy Heights, Sterling Heights Step into comfort and style at Legacy Heights, Sterling Heights' premier duplex condominium community crafted by SunByrnes Properties & Construction. This beautifully designed Craftsman-style split-level condo offers a maintenance-free exterior and a host of high-end features perfect for your next home. Enjoy the open-concept floorplan with 9' ceilings, highlighted by a grand foyer with an impressive staircase featuring wood handrails and iron spindles. A flex room with a trim feature wall and glass French doors provides a private space for work or relaxation. The great room boasts a gas linear fireplace and large picture windows that flood the space with natural light. The chef's kitchen is a showstopper, featuring: Shaker cabinets with 42" uppers Quartz countertops and backsplash Large entertainer's island Stainless Steel KitchenAid appliance suite Walk-in pantry The adjacent dining nook comfortably seats eight. Retreat to the first-floor primary suite with a custom feature wall, spacious walk-in closet, and luxurious bathroom with double sinks, euro-style shower door, and ceramic tile finishes. Upstairs, find two additional bedrooms, each with its own private bathroom. Additional highlights: Hardwood flooring in open living spaces; plush carpet in bedrooms Modern trim package with flat panel doors and black hardware Stylish lighting package and recessed lighting 9' basement with egress window and plumbing rough-in 10' x 12' rear patio for outdoor enjoyment Energy-efficient Marvin windows and durable Hardie Board construction This condo offers the perfect blend of luxury and convenience in a prime location with easy access to major commuting routes, shopping, and entertainment. Legacy Heights is located near 43739 Mound Rd, Sterling Heights, MI 48314. Don't miss out on this rare opportunity to own a brand-new, high-end condo in a sought-after community.
| 2 days ago | Listing first seen on site | |
| 2 days ago | Listing updated with changes from the MLS® |
IDX provided courtesy of Realcomp II Ltd. via MiRealSource. Copyright © 2025 Realcomp II Ltd. Shareholders.
IDX information is provided exclusively for consumers' personal, non-commercial use and may not be used for any purpose other than to identify prospective properties consumers may be interested in purchasing and that the data is deemed reliable but not guaranteed accurate by the MLS.


Did you know? You can invite friends and family to your search. They can join your search, rate and discuss listings with you.